隔音降噪_柴油發電機組噪聲處理工程技術規范(一)
在生活區,商務大樓等地方安裝備用柴油發電機組,還需要對柴油發電機組噪聲進行處理,以免影響周圍人們的生活。所以在鬧市等地區環境要求較高的地方要嚴格按照該地區環保法律法規即《城市區域環境噪聲標準》精心設計處理避免給自己帶來不必要的糾紛。廣西發電機廠家頂博電力先進的降噪消聲裝置對進、排風通道和排氣系統進行降噪處理,確保機組在滿足通風條件,不降低機組輸出功率的前提下,完全滿足國家標準對環境噪聲的要求。
柴油發電機組噪聲處理工程技術規范內容如下:
適用范圍
本標準規定了柴油發電機組噪聲處理工程的設計、施工、驗收以及運行管理的技術要求,可作為環境影響評價、可行性研究、設計施工、環境保護驗收及建成后運行與管理的技術依據。
規范性引用文件
(1)環境保護有關法律法規
(2)《聲環境質量標準》(GB33096-2008)
(3)《工業企業廠界環境噪音排放標準》(GB12348-2008)
總體設計
(1)發電機組噪聲應達到國家標準《城市區域環境噪聲標準》(GB 3097-93)中各區域類別相應的噪聲排放標準。
(2)應根據企業柴油發電機的位置、機房空間結構、發電機組功率和數量等實際情況確定柴油發電機噪聲處理工程的處理規模和處理工藝,做到保護環境、經濟合理、技術可靠。
(3) 處理工程技術方案的選擇應符合環境影響評價報告書批復文件的要求,柴油發電機組噪聲處理后應穩定達到有關國家和地方排放標準的規定。
柴油發電機組噪聲處理工藝技術要求
柴油發電機組噪聲主要包括發動機的排氣噪聲、進氣噪聲、燃燒噪聲、連桿及活塞、齒輪等運動件在工作時的往復高速運動和撞擊而產生的機械噪聲、冷卻水排風扇氣流噪聲。柴油發電機組的綜合噪聲很高,根據功率大小,一般高達100-125dB(A)
柴油發電機噪聲治理方法包括進風、排風、燃氣排氣通道的消聲處理、機房內的吸聲處理、機房的隔聲處理等。
柴油發電機(風冷式)噪聲治理平面示意圖

1-柴油機 2-自配排煙消聲器 3-冷卻風扇 4-柔性接頭 5-排風消聲器 6-排風百葉窗 7-隔聲門 8-進風百葉窗II 9-進風消音器 10-進風百葉窗I 11-吸音天花 12-吸音壁 13-煙塵凈化器 14-循環水箱 15-噴淋水泵 16-油箱。
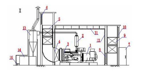
柴油發電機(風冷式)噪聲治理工藝立面圖

1-柴油機 2-自配排煙消聲器 3-冷卻風扇 4-柔性接頭 5-排風消聲器 6-排風百葉窗 7-隔聲門 8-進風百葉窗II 9-進風消音器 10-進風百葉窗I 11-吸音天花 12-吸音壁 13-煙塵凈化器 14-循環水箱 15-噴淋水泵。
以上信息來由廣西發電機組廠家頂博電力收集整理,頂博電力十多年老品牌企業,供應的柴油發電機組功率范圍為功率為20kw-2000kw,擁有電氣、降噪靜音、環保等各方面的專業技術人員,可根據客戶需要提供自啟動、并機及微機監控等配套設備,可提供靜音及移動拖車柴油發電機組。從機房設計、安裝調試、降噪工程、機組維修保養、配件供應等成套服務,滿足了用戶的電力需求,熱線:13667715899
推薦文章
- 年后開工早規劃:農歷年前采購柴油發電機組,為開春生產備好“電力心臟” 2026-01-29
- 致制造業老板:關于節后“開門紅”,一個比招工更重要的準備 2026-01-29
- 重磅簽約!廣西頂博成功拿下成都15萬噸高端化工項目電力保障 2026-01-23
- 重磅!浙江化工龍頭正式與廣西頂博簽約采購800kW玉柴動力機組! 2026-01-22
- 護航重大工程!廣西頂博與新疆某建工簽訂發電機組戰略采購協議 2026-01-16
- 廣西頂博回訪南方電網多所供電所:10KW發電機表現卓越獲高度贊譽 2026-01-14
- 養殖戶的定心丸:頂博智能康明斯柴油發電機組讓養殖場永不斷電 2026-01-13
- 0秒切換!市電一斷立馬頂上,這才是養殖場該有的備用電源! 2026-01-13
- 一臺設備頂三臺用!頂博自卸式排水方艙用科技破解積水困局,成建筑行業黑科技 2026-01-12
- 手機一鍵遠程啟停、一鍵遠程監控,智能化讓發電機組操作簡單到極致 2026-01-09






桂公網安備45010702002247